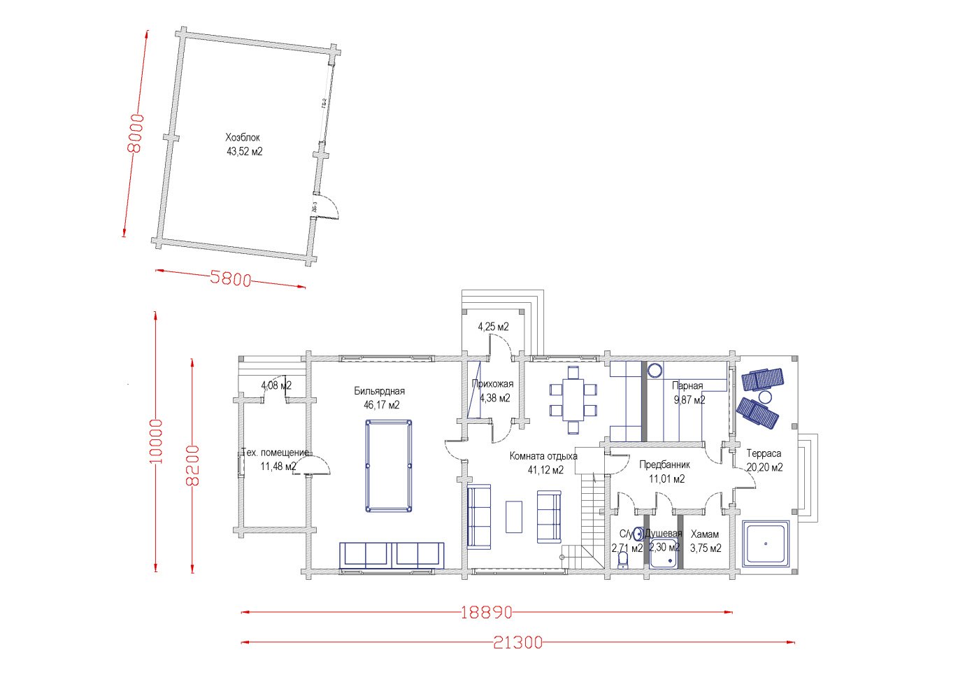
SPA-комплекса из клееного бруса «Северус» – великолепный комплекс состоящий из основного здания общей площадью 261,8 кв.м. и хозблока (43,54 кв.м.).
Подробней познакомиться с проектом можно по ссылке.
Ещё больше проектов в разделе «Проекты домов».
Посмотрите фотографии (Более 20 000!) строительства домов в разделе «Фото домов».









